12 Dyer Court

Uraidla

5

Beds

2

Baths

5

Cars

Uraidla Sanctuary with Lofty views

Tucked within a private enclave in the heart of Uraidla, this tightly held Adelaide Hills address offers the rare combination of true seclusion and everyday convenience. Just 20 minutes to Adelaide’s eastern suburbs and only 10 minutes from Stirling or Crafers villages and Freeway access, it’s the ideal retreat for those who want the Hills lifestyle without sacrificing connection. At the end of a leafy street with an elevation that takes in views over the Piccadilly Valley to Mount Lofty beyond.
Here, the rhythm of life is deliciously local. Farmgate stalls, boutique eateries, vineyards and cellar doors shape the weekends, while the village is close enough for a spontaneous stroll for essentials or a long lunch at the gorgeous Uraidla Hotel, followed by something sweet from the Bakery. It’s a setting that feels indulgent and easy all at once.
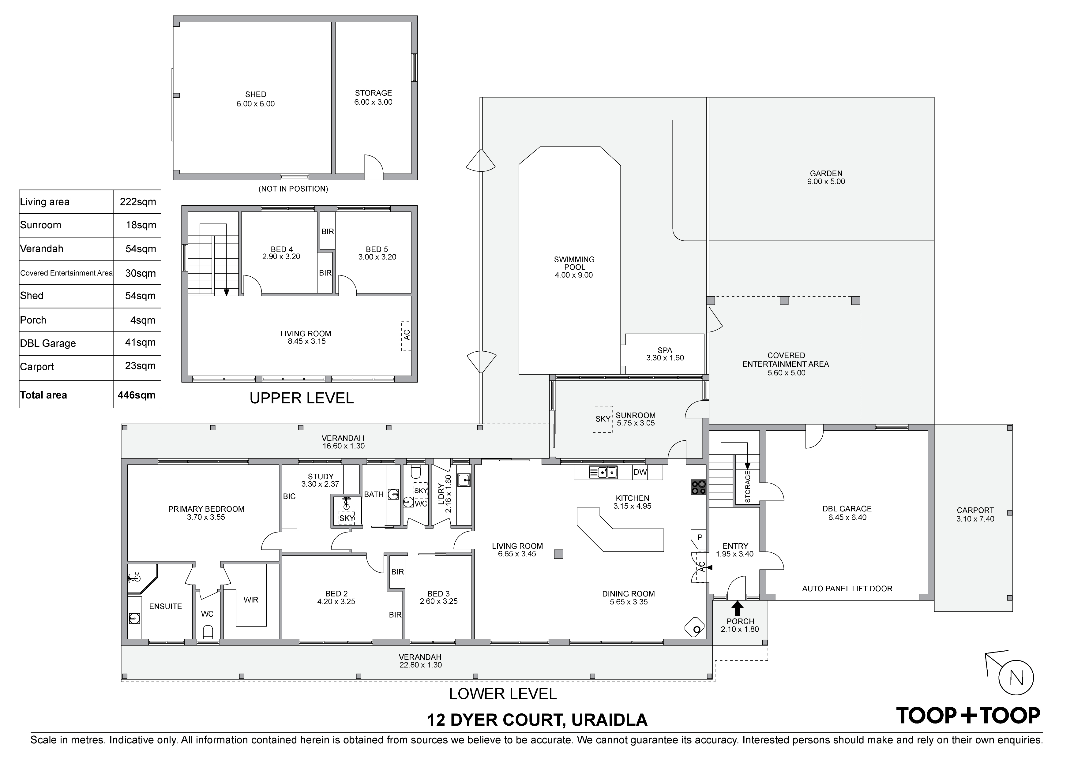
The home itself is a substantial five-bedroom, two-bathroom residence circa 1984, offering generous proportions and a family-friendly layout designed for comfort, entertaining and flexibility. Two spacious living areas allow everyone to spread out, with an open plan kitchen/dining/lounge forming the welcoming heart of the home, complemented by an additional sunroom for relaxed mornings and winter warmth. A dedicated study adds valuable practicality for work, study or quiet retreat.
Outdoors, the lifestyle credentials truly come alive. A covered entertaining area sets the scene for long gatherings, while an in-ground pool and spa create an everyday holiday at home. All of this is set on a large allotment of more than an acre (4,530m2), framed by landscaped gardens that blend into a stunning natural bush setting for privacy, beauty and that unmistakable Hills calm.
Cultivate your own fruit and vegetables and embrace the distinctive lifestyle this wonderful village is known for. You’ll find countless ways to connect with the community all within easy walking distance, from sporting clubs and facilities to a wide range of friendly local groups. It’s also a comfortable stroll to Uraidla Primary School and public transport.
This is not just a home – it’s an enviable lifestyle opportunity in one of the Hills’ most beloved villages. Make it yours!
Noteworthy features include:
- Split system air-conditioning and combustion fire
- Induction cooktop and electric oven
- Gas (ensuite) and electric hot water system
- Covered entertainment area with shade blinds
- In-ground salt chlorinated, concrete pool and spa
- Double garage with automatic panel-lift door and convenient and secure access direct into the home
- Carport
- 6m x 9m shed/workshop/storage
- Large, flat and useable allotment of more than an acre (4,530m2)
- Fully fenced
- Surrounded by landscaped gardens combined with stunning natural bush setting
- Orchard, chook house and fenced vegie garden
- Rainwater and community spring-water bore supply
- Enviro-cycle septic system

For Sale

Contact Agent

Inspection Times

Property Information

Built 1984

Land Size 4530.00 sqm approx.

Council Rates $3,721.55pa approx

ES Levy $231.95pa approx

Water Rates $0.00pa approx

CONTACT AGENT

ANITA HARDINGHAM

Sales Partner

0413 335 706
About me

Neighbourhood Map

Schools in the Neighbourhood

School Distance Type

TOOP VAULT

Find properties before they hit the market.