Copied to clipboard

6 Wootoona Terrace

St Georges

4

Beds

3

Baths

2

Cars

Buy in one of the most prestigious streets!

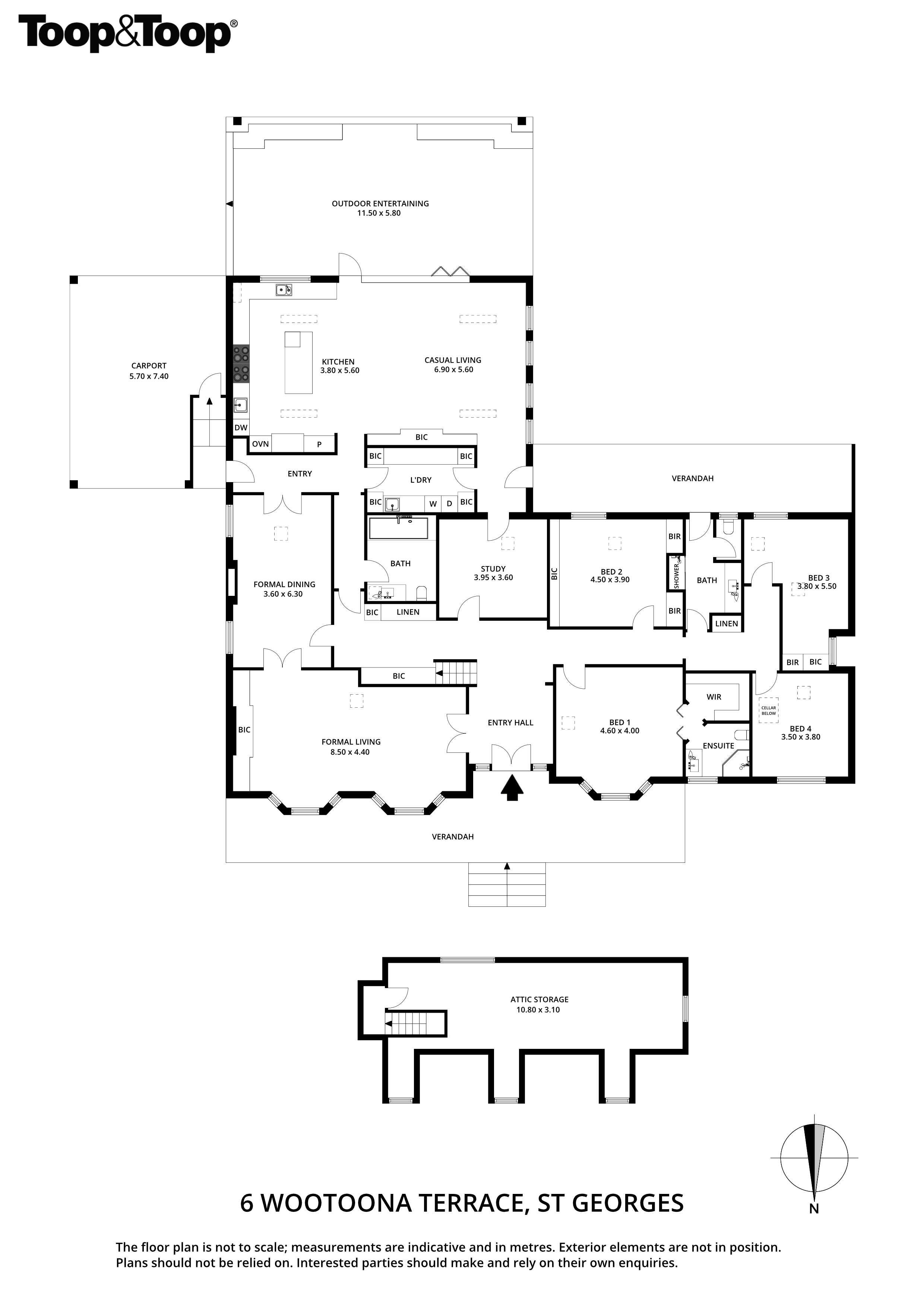
Offering an excellent opportunity for families to buy into a highly sought-after location this 4 bedroom plus study family oasis enjoys a delightful outdoor entertaining pavilion and brand new north/south supergrass tennis court in absolute privacy.
High ceilings and parquetry floors define open plan living and dining areas of exceptional proportions that are ideal for both relaxed living and entertaining on a grand scale.

Impeccably maintained, this flawlessly presented family home features four charming bedrooms plus separate study, the master bedroom with bay window, walk-in robe and en-suite.
The spacious open plan kitchen and family room open up via bi-fold doors to an impressive undercover entertaining area overlooking the brand new tennis court and lush deep garden by garden designer Peter Stubbs.
Upstairs delivers a fantastic fifth bedroom / teenage retreat or third living area away from any interruptions downstairs.

Highlights include: Robert Bailey custom designed JAG kitchen, underfloor heating, excellent storage, laundry, three modern bathrooms, new carpets and kitchen window server to outdoor entertaining area.
This stunning home is enviably located in the sought after Linden Park Primary & Glenunga International High School Zones, Seymour Girls College at your back door and a few moments from the bustling Burnside Village. Land: 2,318sqm approx.

Features
Security alarm
Ducted reverse cycle air-conditioning
Parquetry floors
Underfloor heating
JAG kitchen
Glass bi-fold doors to outdoor pavilion
Garden designed by Peter Stubbs
New carpets
Brand new Supergrass tennis court with fencing & privacy curtain

Nearby
Seymour Girls College
Burnside Village
Public transport
Glenunga shops

FEATURES

Tennis Court

Sold on Mar 4, 2019

$2,560,000

Property Information

Built 1930

Land Size 2318.00 sqm approx.

Council Rates $7,076.70 pa approx.

ES Levy $153.04 pa approx.

Water Rates $178.75 pq approx.

CONTACT AGENTS

BRONTE MANUEL

Owner, Director + Auctioneer at TOOP+TOOP

0439 828 882
About me

Neighbourhood Map

Schools in the Neighbourhood

School Distance Type

TOOP VAULT

Find properties before they hit the market.