60 Snows Road

Stirling

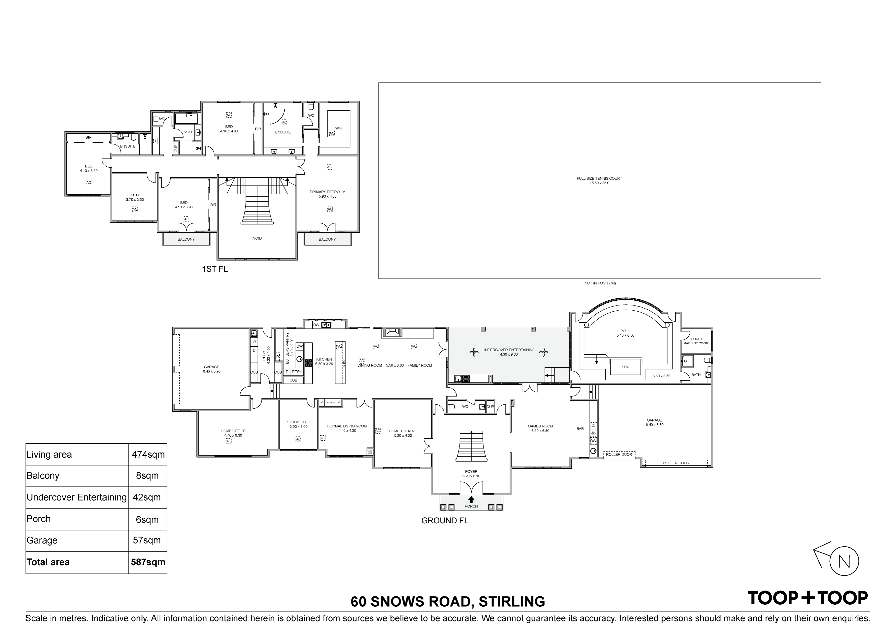
6

Beds

4

Baths

5

Cars

Sold by James and Bronwyn Lindsay

Sold by James and Bronwyn Lindsay

FEATURES

Air Conditioning
Alarm System
Balcony
Broadband
Built In Robes
Deck
Dishwasher
Ducted Cooling
Ducted Heating
Electric Hot Water Service
Fully Fenced
Heated Indoor Pool
Intercom
Outdoor Entertaining
Pool - Inground
Remote Garage
Reverse Cycle Aircon
Rumpus Room
Secure Parking
Solar Panels
Spa - Inside
Study
Tennis Court
Vacuum System
Water Tank

Sold on Jan 29

Property Information

Built 2011

Land Size 4159.00 sqm approx.

Council Rates $6,299.99pa approx

ES Levy $397.10pa approx

Water Rates $669.40pq approx

CONTACT AGENTS

JAMES LINDSAY

Sales Partner

0434 182 351
About me

BRONWYN LINDSAY

Sales Partner

0423 846 940
About me

Neighbourhood Map

Schools in the Neighbourhood

School Distance Type

TOOP VAULT

Find properties before they hit the market.